精致的两居室
80㎡精致北欧风,生活还可以活成另一个模样
最近听到一个很有意思的事情
原来,除了真人网红外
在房子界,也有一些凭借
过了一层滤镜后的“高颜值”,而风靡一时
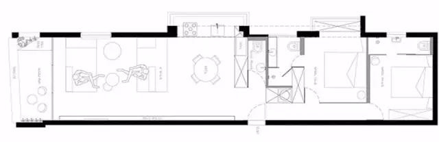
80㎡精致北欧风平面布局
80㎡精致北欧风,生活还可以活成另一个模样
最近听到一个很有意思的事情
原来,除了真人网红外
在房子界,也有一些凭借
过了一层滤镜后的“高颜值”,而风靡一时
80㎡精致北欧风平面布局
SIG公寓是位于
以色列特拉维夫的小空间住宅
单色系的家居搭配
精致的80㎡,不用加滤镜都美地很
由Yael Perry,Dafna Gravinsky
和建筑师Amir Navon设计
以色列特拉维夫的小空间住宅
单色系的家居搭配
精致的80㎡,不用加滤镜都美地很
由Yael Perry,Dafna Gravinsky
和建筑师Amir Navon设计
SIG公寓是位于
以色列特拉维夫的小空间住宅
单色系的家居搭配
精致的80㎡,不用加滤镜都美地很
由Yael Perry,Dafna Gravinsky
和建筑师Amir Navon设计
不同于那些精美于滤镜中的网红家
“尚未完工”的精装质感
令这个80㎡的住宅脱颖而出
生活的气息
流转于大白墙与裸露的水泥之间
在残缺中寻找到了,更另类的家居美
“尚未完工”的精装质感
令这个80㎡的住宅脱颖而出
生活的气息
流转于大白墙与裸露的水泥之间
在残缺中寻找到了,更另类的家居美
不同于那些精美于滤镜中的网红家
“尚未完工”的精装质感
令这个80㎡的住宅脱颖而出
生活的气息
流转于大白墙与裸露的水泥之间
在残缺中寻找到了,更另类的家居美
客厅的电视墙
被纯白的金属架覆盖
每一个小格子,都是一个个储物空间
被纯白的金属架覆盖
每一个小格子,都是一个个储物空间
开放式的家居模式
厨房被设计在通透的百叶窗前
冰箱等家电
被隐藏在一旁的壁柜之中
厨房被设计在通透的百叶窗前
冰箱等家电
被隐藏在一旁的壁柜之中
开放式的家居模式
厨房被设计在通透的百叶窗前
冰箱等家电
被隐藏在一旁的壁柜之中
L式的厨房设计
中央的剩余面积
用作于家中的餐厅布置
中央的剩余面积
用作于家中的餐厅布置
黑、白的餐厅环境
在裸露的水泥墙映衬下
一丝都不觉得粗糙、单调
在裸露的水泥墙映衬下
一丝都不觉得粗糙、单调
地板都不用铺
这样的水泥地,也觉得挺舒适
这样的水泥地,也觉得挺舒适
不用传统的玻璃隔断
甚至连个窗帘都没有
客厅与阳台之间的距离
仅仅只用一个挂式的百叶帘
甚至连个窗帘都没有
客厅与阳台之间的距离
仅仅只用一个挂式的百叶帘
既可以遮挡室外的视线
又可以方便于阳光的穿透
室外的小阳台
给栏杆旁加了一层木隔板
顶部的筒灯
直接射向,小客厅的位置
又可以方便于阳光的穿透
室外的小阳台
给栏杆旁加了一层木隔板
顶部的筒灯
直接射向,小客厅的位置
裸露的红色电线
这是房间走廊里的最重要装饰
2个主卧,2个卫生间
80㎡的北欧风,还可以如此布置
这是房间走廊里的最重要装饰
2个主卧,2个卫生间
80㎡的北欧风,还可以如此布置
深灰色的主卧墙体
将窗边的空间,也全都利用
嵌入式的壁柜
一半是百叶窗,一半是收纳橱柜
将窗边的空间,也全都利用
嵌入式的壁柜
一半是百叶窗,一半是收纳橱柜
床头的吊灯,也是极为有趣
黄铜的质地,令家居更为精致
一道隐形隔板,遮住了
与卫生间之间的距离
黄铜的质地,令家居更为精致
一道隐形隔板,遮住了
与卫生间之间的距离
黑白小瓷砖,典型的北欧风设计
小圆镜一旁搭配置物柜
重新梳理了卫浴产品的收纳
小圆镜一旁搭配置物柜
重新梳理了卫浴产品的收纳
另一间的侧卧,以淡淡的粉色为主
相框、灯线、床套
都有着配套统一的粉色系
相框、灯线、床套
都有着配套统一的粉色系
另一间的侧卧,以淡淡的粉色为主
相框、灯线、床套
都有着配套统一的粉色系
清爽,洁净的卫生间
这件次卧的配套洗手间
并没有配置,洗浴间的陈设
这件次卧的配套洗手间
并没有配置,洗浴间的陈设
清爽,洁净的卫生间
这件次卧的配套洗手间
并没有配置,洗浴间的陈设
弹簧镜,打破了
传统的镜面设计
左、右可转向的设计
这样的镜饰,似乎更为节约空间
传统的镜面设计
左、右可转向的设计
这样的镜饰,似乎更为节约空间
地板都不铺
但这个极简的80㎡却演绎出了
不一样的精装风
但这个极简的80㎡却演绎出了
不一样的精装风