我的官网 你也能拥有自己的官网

马上下载

74平小清新北欧风二居室,真的好爱这么素雅的小户型!

2017-07-12
环球创意家居
在第一眼看见这套房子的时候,小编就已经被深深的吸引住了,从一进门就看到的客厅开始,电视背景墙的设计让小编直接爱上这套北欧风的小窝,颜色的搭配上,真的非常小清新,别不信,你看了就懂了~
74平小清新北欧风二居室,真的好爱这么素雅的小户型!
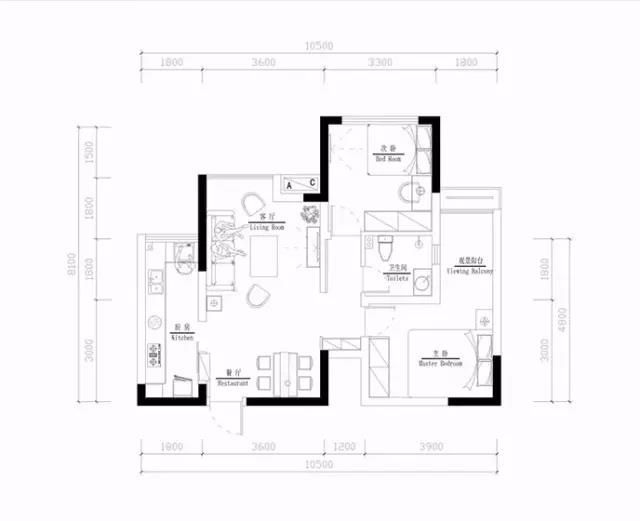
平面布置图
74平小清新北欧风二居室,真的好爱这么素雅的小户型!
进门的右手边,就是角落中的小餐厅,餐边柜借用了部分走廊的空间,非常的实用,墙面的挂画和吊灯,都是设计中的亮点所在。
74平小清新北欧风二居室,真的好爱这么素雅的小户型!
让我们细看一下这面电视背景墙,嫩绿色的颜色选择的非常棒,传统的北欧风电视柜和茶几,也能增添小清新的感觉。
74平小清新北欧风二居室,真的好爱这么素雅的小户型!
沙发背景墙运用了在北欧风中非常常见的文化砖,搭配简约的挂画,就能够体现出北欧风的文化气息。
74平小清新北欧风二居室,真的好爱这么素雅的小户型!
回头看整体,客餐厅空间就有电视柜、餐边柜和玄关鞋柜的收纳,储藏空间比较充足,空间的利用率非常不错。
74平小清新北欧风二居室,真的好爱这么素雅的小户型!
长方形的厨房能够带来的就是充足的操作空间,橱柜和吊柜能多做几个,基本不用更担心厨房的收纳不够用。
74平小清新北欧风二居室,真的好爱这么素雅的小户型!
阳台和卧室之间打通,可以当成一个休闲室、书房来用,衣服晒到靠窗的部分就好了。
74平小清新北欧风二居室,真的好爱这么素雅的小户型!
次卧是给女儿预留的,所以颜色选择了粉色,更有公主风的感觉,小小的桌子,即是床头柜,也是以后的小书桌。
74平小清新北欧风二居室,真的好爱这么素雅的小户型!
环球创意家居
CHHQQY.guan.com
投诉
环球创意家居
关注 122 | 粉丝 1367
官网地址:CHHQQY.guan.com
点赞是美意,打赏是鼓励
匿名打赏

举报

色情
反动
违法信息
人身攻击
违规有奖活动
不实信息
其他

举报